2301 W Beebe Capps Expressway
Searcy, AR

$250,000
- Commercial Investment
Active
MLS # 26017119
Listing courtesy of JOHN KILPATRICK from RE/MAX ADVANTAGE.
Data last updated Wednesday, April 29th, 2026.
About
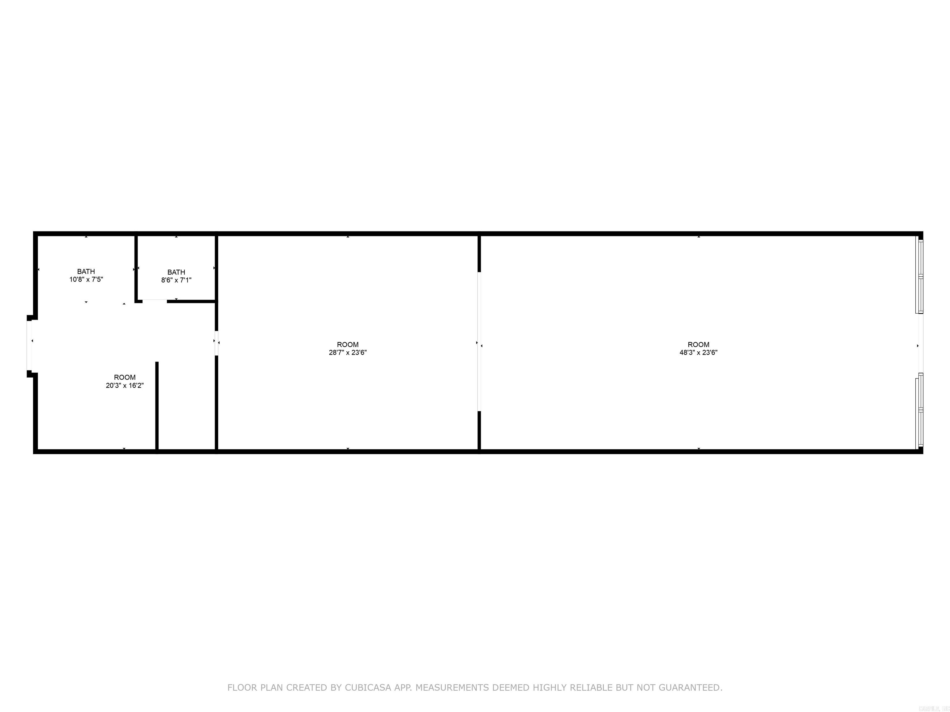
Prime 2,500 sq ft retail space in Searcy’s high-traffic Beebe Capps Expressway corridor. This versatile, move-in ready space offers excellent visibility, ample parking, and a customizable layout, perfect for a range of business ventures in a growing community. High-visibility strip on Beebe Capps Expressway, close to local businesses and residential areas, Suggested Business Concepts: Sandwich shop with casual dining, Pizza restaurant with delivery options, Pastry or donut shop for artisanal baked goods, Legal services office for family or real estate law, accounting firm offering tax prep and bookkeeping, IT and business consulting for local enterprises, Health and wellness center selling supplements and gear, Pet grooming boutique with retail pet products, Vintage and resale boutique for sustainable fashion. Searcy is a dynamic city with over 23,000 residents, home to Harding University and a robust business ecosystem. Beebe Capps Expressway ensures high exposure, drawing both locals and visitors. The area’s demand for dining, professional services, and unique retail makes this an ideal location. Taxes are estimated.

©2026 Cooperative Arkansas REALTORS® Multiple Listing Services, Inc. All rights reserved. The data relating to real estate for sale on this site comes in part from the Broker ReciprocitySM Program of CARMLS, Inc. Real estate listings, held by brokerage firms other than Halsey Real Estate, are marked with the Broker ReciprocitySM logo and includes the name of the listing brokers. Broker ReciprocitySM information is provided exclusively for consumers' personal, non-commercial use and may not be used for any purpose other than to identify prospective properties for consumers. Use of search facilities of data on this site, for any purpose other than by a consumer inquiring to purchase, is prohibited. Information Deemed Reliable But Not Guaranteed. The broker operating this site believes the data here to be correct but advises interested parties to confirm prior to purchase.

Back to Top
Accessibility