15 Pinal
Cherokee Village, AR

$449,900
- Residential
4 beds
3 baths
2986 sqft
Active
MLS # 26016130
Listing courtesy of LAURA SACKETT CLUTE from OZARK GATEWAY REALTY OGW LLC.
Data last updated Wednesday, April 22nd, 2026.
About
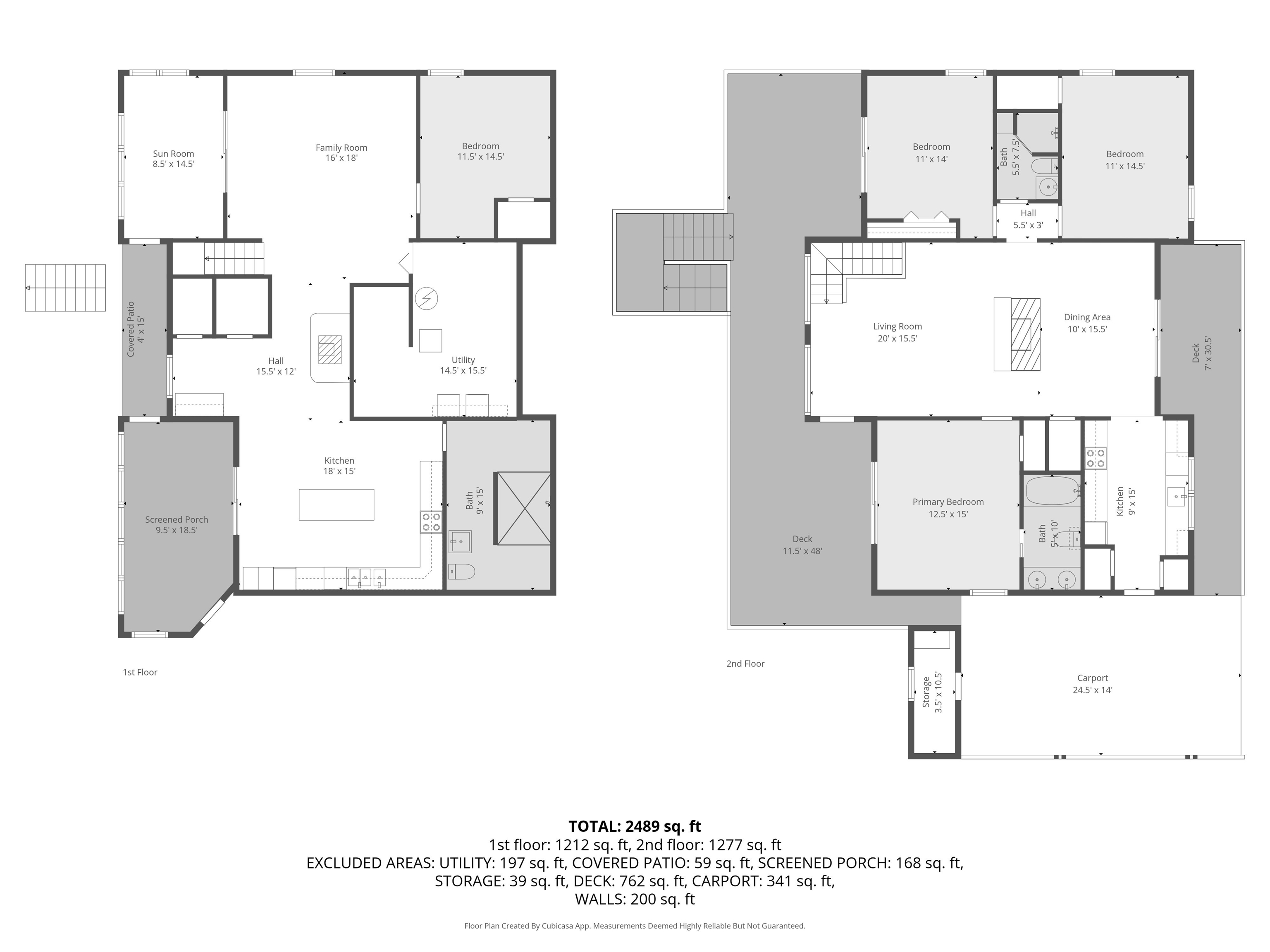
Privacy and Lakefront living, what more could you ask for? Deck expands the length of the back of the home and can be accessed from 2 bedrooms, living room and carport. The lower level has been updated with tile flooring, bathroom has a large walk-in shower. 2 kitchens, one on each level, both having dw, stove, fridge. Seller added two sun rooms to the lower level for more options of viewing the lake. Main level has three bedrooms, 2 baths, open living-dining area with 2 sided fireplace in the middle. Large Picture windows and vaulted ceilings let in tons of natural light. Carport with storage plus large storage room underneath for all your lake toys and yard tools. There is a vacant lot on both sides of the home for privacy & the land sits on the edge of a cove. All electric home w/wood burning fireplace and wood burning stove for back up. NAEC electric service also has an option for NEXT fiber optic internet service. Can be purchased furnished.

©2026 Cooperative Arkansas REALTORS® Multiple Listing Services, Inc. All rights reserved. The data relating to real estate for sale on this site comes in part from the Broker ReciprocitySM Program of CARMLS, Inc. Real estate listings, held by brokerage firms other than Halsey Real Estate, are marked with the Broker ReciprocitySM logo and includes the name of the listing brokers. Broker ReciprocitySM information is provided exclusively for consumers' personal, non-commercial use and may not be used for any purpose other than to identify prospective properties for consumers. Use of search facilities of data on this site, for any purpose other than by a consumer inquiring to purchase, is prohibited. Information Deemed Reliable But Not Guaranteed. The broker operating this site believes the data here to be correct but advises interested parties to confirm prior to purchase.

Back to Top
Accessibility