64 Cresta Way
Hot Springs Village, AR

$325,000
- Residential
3 beds
2 baths
1776 sqft
Active
MLS # 26011111
Listing courtesy of JIM HARBOUR from RE/MAX OF HOT SPRINGS VILLAGE.
Data last updated Monday, March 23rd, 2026.
About
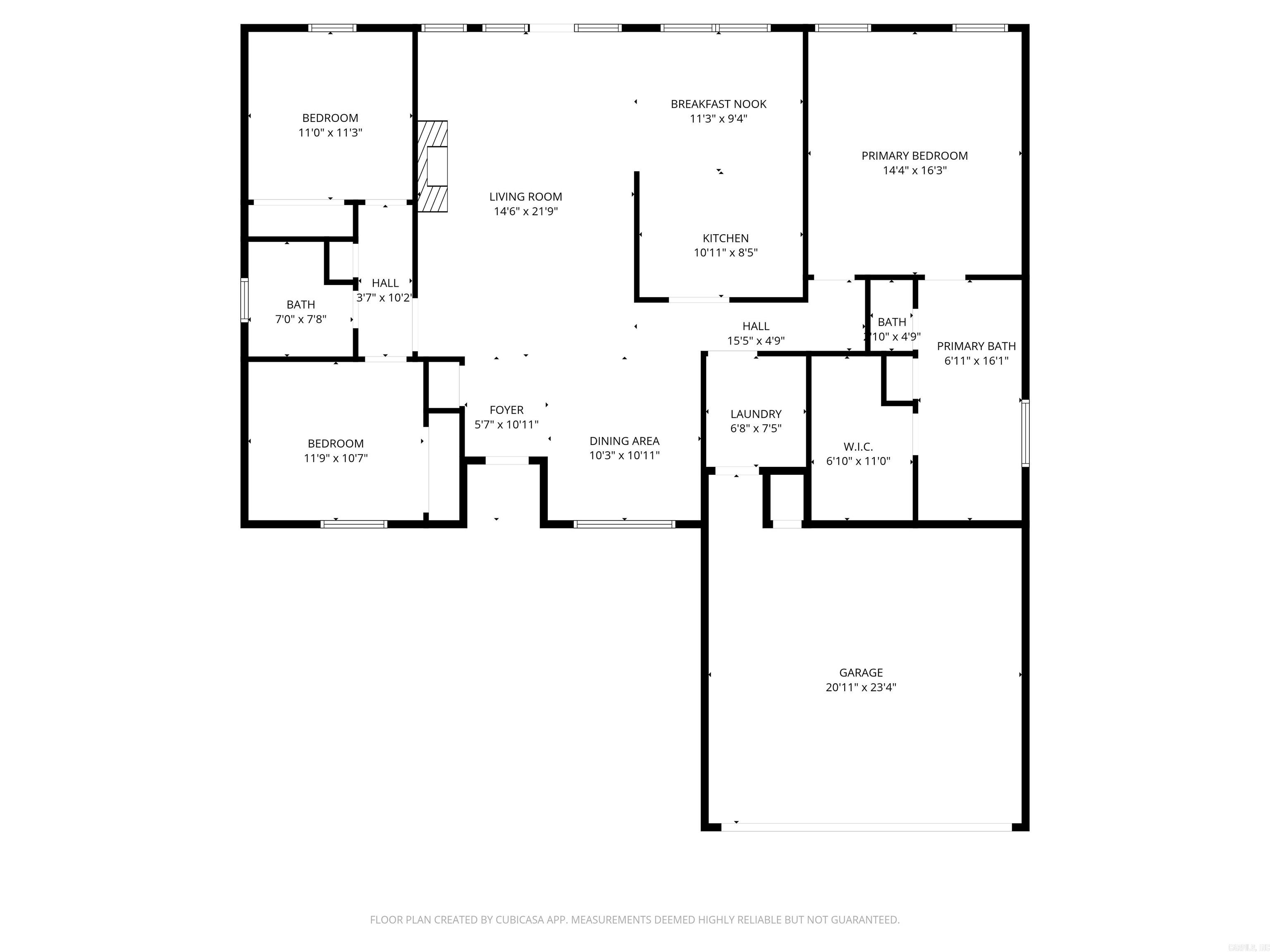
Clean and move in ready. Great curb appeal. Three bedroom and two bath. Primary bedroom apart. Primary bath has two sinks, tub and large walk in shower. Guest bath has tub/shower combo. Gas log fireplace in living room. Breakfast area, breakfast bar and separate dining room. Most furniture is available. Flat driveway. Covered patio and open deck area. Fenced backyard with wooded view. Roof is three to four years old. NO Seller Property Disclosure available. AGENTS, please see remarks.

©2026 Cooperative Arkansas REALTORS® Multiple Listing Services, Inc. All rights reserved. The data relating to real estate for sale on this site comes in part from the Broker ReciprocitySM Program of CARMLS, Inc. Real estate listings, held by brokerage firms other than Halsey Real Estate, are marked with the Broker ReciprocitySM logo and includes the name of the listing brokers. Broker ReciprocitySM information is provided exclusively for consumers' personal, non-commercial use and may not be used for any purpose other than to identify prospective properties for consumers. Use of search facilities of data on this site, for any purpose other than by a consumer inquiring to purchase, is prohibited. Information Deemed Reliable But Not Guaranteed. The broker operating this site believes the data here to be correct but advises interested parties to confirm prior to purchase.

Back to Top
Accessibility