6906 62/412 Highway
Viola, AR

$189,500
- Commercial Investment
Active
MLS # 26009254
Listing courtesy of BURDETTA PENDERGRASS from UNITED COUNTRY COTHAM & CO..
Data last updated Wednesday, April 15th, 2026.
About
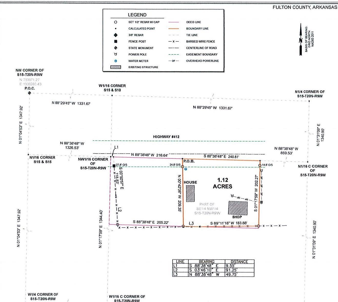
TURNKEY SHOP for Sale | 2,400 Sq Ft Commercial Building on 1.12 Acres (surveyed) with 240 ft of Hwy 62/412 Frontage – Near Viola, AR in Fulton County. Excellent location and an excellent opportunity! Potential to expand into a full-service MECHANIC SHOP, alignments, inspections, custom detailing, off-road and truck accessory shop, used car lot with service shop, tire sales and service center, RV and camper service, or welding business. Possibilities are endless! Fully equipped with lifts, compressors, tire machines, and some tools. Approx. 2,400 insulated sq ft of Commercial Building Space offering a 2,138 sq ft heated shop area with a bathroom and an additional 14'x24' Retail/Office space. Three service bays / 2-10'x10' Overhead Doors & 1-12'x10' Overhead Door, Tire Changer, Phoenix Wheel Balancer, 12,500 lb 4-post Tuxedo Lift, 10,000 lb 4-post Champion Lift, and 2 Ingersol Rand Air Compressors. Rural water and a well on the property. New 1,000-gallon septic tank and system. 4’x10’ elevated sign to advertise your business!

©2026 Cooperative Arkansas REALTORS® Multiple Listing Services, Inc. All rights reserved. The data relating to real estate for sale on this site comes in part from the Broker ReciprocitySM Program of CARMLS, Inc. Real estate listings, held by brokerage firms other than Halsey Real Estate, are marked with the Broker ReciprocitySM logo and includes the name of the listing brokers. Broker ReciprocitySM information is provided exclusively for consumers' personal, non-commercial use and may not be used for any purpose other than to identify prospective properties for consumers. Use of search facilities of data on this site, for any purpose other than by a consumer inquiring to purchase, is prohibited. Information Deemed Reliable But Not Guaranteed. The broker operating this site believes the data here to be correct but advises interested parties to confirm prior to purchase.

Back to Top
Accessibility