10 Hammond Drive
Greenbrier, AR

$279,000
- Residential
3 beds
2 baths
1800 sqft
Active
MLS # 26006788
Listing courtesy of CHRISTOPHER HODGE from LPT REALTY CONWAY.
Data last updated Sunday, February 22nd, 2026.
About
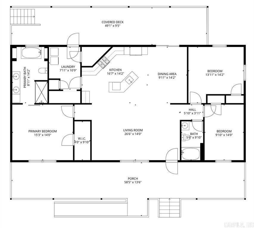
Well-maintained home on approximately 6 acres with a stocked pond, covered parking/workshop space, and excellent access to Highway 285, offering a rare combination of acreage, utility, and convenience at an approachable price point. This approximately 1,800-square-foot home features a handicap-accessible floor plan with wider doorways and bathroom safety features designed for comfortable, long-term living. The home is modular in construction with upgraded specifications, including 2×6 exterior walls, additional insulation, and a solid, permanent setup that lives much like a traditional site-built home. Interior features include granite countertops, functional living spaces, and good natural light throughout. Outside, enjoy 2 large covered porches, a mix of open and wooded acreage, and a stocked pond that adds recreational and lifestyle appeal. Covered parking and workshop/storage space provide practical rural functionality for equipment, hobbies, or additional storage. Set up your personal showing today!

©2026 Cooperative Arkansas REALTORS® Multiple Listing Services, Inc. All rights reserved. The data relating to real estate for sale on this site comes in part from the Broker ReciprocitySM Program of CARMLS, Inc. Real estate listings, held by brokerage firms other than Halsey Real Estate, are marked with the Broker ReciprocitySM logo and includes the name of the listing brokers. Broker ReciprocitySM information is provided exclusively for consumers' personal, non-commercial use and may not be used for any purpose other than to identify prospective properties for consumers. Use of search facilities of data on this site, for any purpose other than by a consumer inquiring to purchase, is prohibited. Information Deemed Reliable But Not Guaranteed. The broker operating this site believes the data here to be correct but advises interested parties to confirm prior to purchase.

Back to Top
Accessibility