315 W 22nd Street
Little Rock, AR

$245,000
- Residential
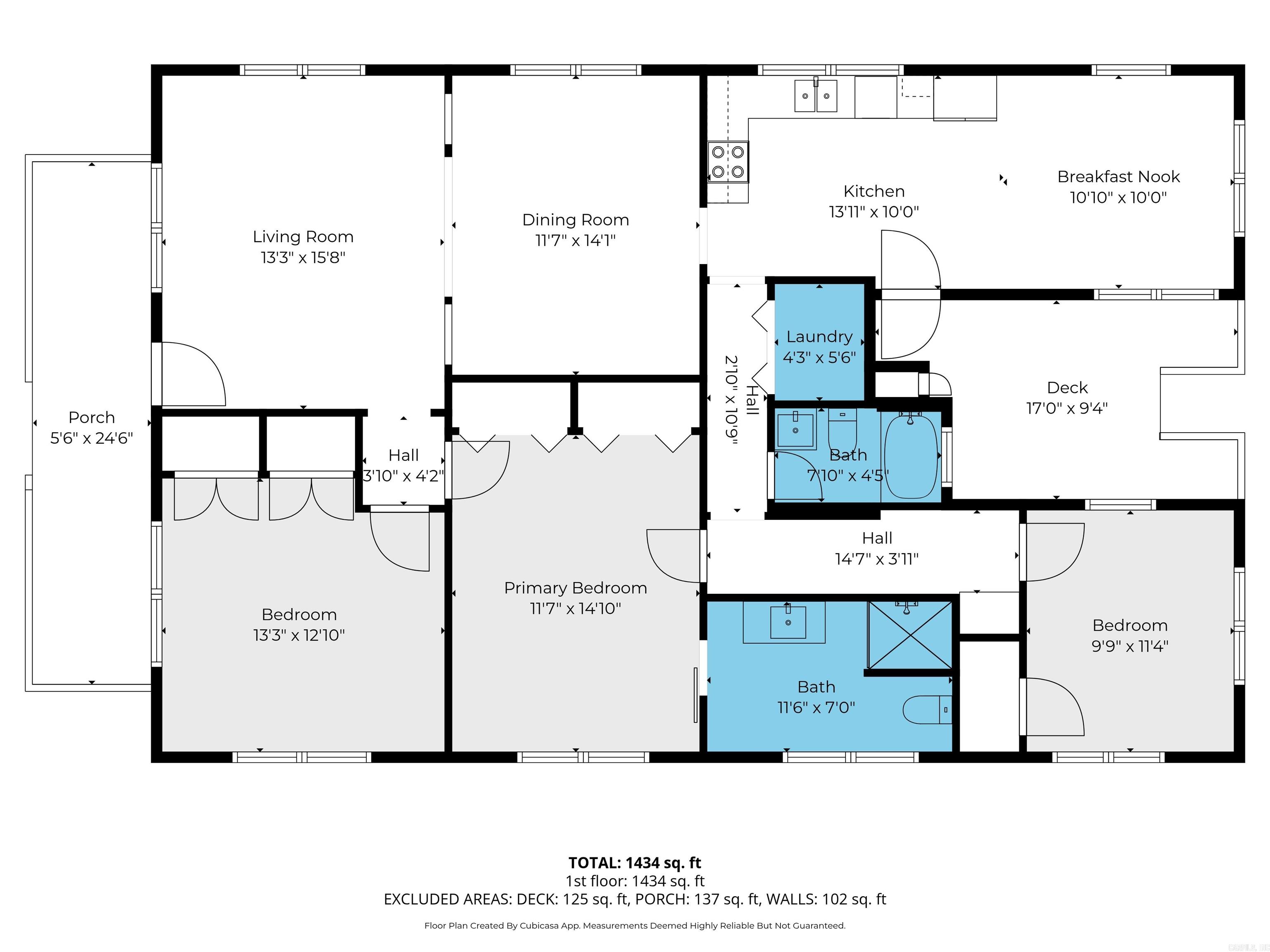
3 beds
2 baths
1717 sqft
Active
MLS # 26001298
Listing courtesy of SCOTT DEATON from DEATON GROUP REALTY.
Data last updated Friday, January 9th, 2026.
About
Welcome home to 315 W 22nd in Little Rock's historic neighborhood, Fultons. Completely restored with care & attention to detail, this beautiful home blends historic charm with modern convenience. Renovated according to Arkansas State Historical Preservation guidelines & inspected by historical consultants, every aspect of this home honors its past while offering the comforts of today. Step into a spacious living room that flows seamlessly into the formal dining area, tall ceilings, stunning light fixtures, & restored original hardwood floors. A modern kitchen includes updated finishes, refrigerator & large eat in area. Both bathrooms are brand new, including a stylish barn door entry to the primary bath. Major updates include a newer roof, HVAC, plumbing, electrical, hot water heater, paint, & windows (replaced/resealed/painted as needed). The brick foundation has been repaired & rebricked, ensuring long-term stability. Crawl space completely resealed, ductwork replaced to insure maximum HVAC flow. All new joist, beams & piers to ensure long term stability for decades to come. Excellent opportunity to own a historically significant property, lovingly renovated for today’s living

©2026 Cooperative Arkansas REALTORS® Multiple Listing Services, Inc. All rights reserved. The data relating to real estate for sale on this site comes in part from the Broker ReciprocitySM Program of CARMLS, Inc. Real estate listings, held by brokerage firms other than Halsey Real Estate, are marked with the Broker ReciprocitySM logo and includes the name of the listing brokers. Broker ReciprocitySM information is provided exclusively for consumers' personal, non-commercial use and may not be used for any purpose other than to identify prospective properties for consumers. Use of search facilities of data on this site, for any purpose other than by a consumer inquiring to purchase, is prohibited. Information Deemed Reliable But Not Guaranteed. The broker operating this site believes the data here to be correct but advises interested parties to confirm prior to purchase.

Back to Top
Accessibility