105 Chalamont Cove
Little Rock, AR

$450,000
- Residential
4 beds
3 baths
2600 sqft
Active
MLS # 25049503
Listing courtesy of WASIF SHARIF from EPIQUE REALTY.
Data last updated Friday, December 26th, 2025.
About
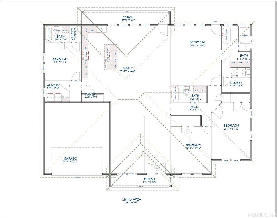
Custom Build Your Dream Home in CHENAL VALLEY! This proposed floor plan offers 4 spacious bedrooms, 2.5 or 3 bathrooms and approximately 2,600 sq. ft. of luxury living — all thoughtfully designed with high ceilings, a modern kitchen, and all bedrooms on the main floor. Located in the prestigious Chenal Valley neighborhood of West Little Rock, this is your opportunity to customize every detail and watch your dream home come to life. Enjoy a prime location, upscale finishes, and the rare chance to be involved from blueprint to completion. Don’t just buy a home — build the one you’ve always envisioned!

©2026 Cooperative Arkansas REALTORS® Multiple Listing Services, Inc. All rights reserved. The data relating to real estate for sale on this site comes in part from the Broker ReciprocitySM Program of CARMLS, Inc. Real estate listings, held by brokerage firms other than Halsey Real Estate, are marked with the Broker ReciprocitySM logo and includes the name of the listing brokers. Broker ReciprocitySM information is provided exclusively for consumers' personal, non-commercial use and may not be used for any purpose other than to identify prospective properties for consumers. Use of search facilities of data on this site, for any purpose other than by a consumer inquiring to purchase, is prohibited. Information Deemed Reliable But Not Guaranteed. The broker operating this site believes the data here to be correct but advises interested parties to confirm prior to purchase.

Back to Top
Accessibility