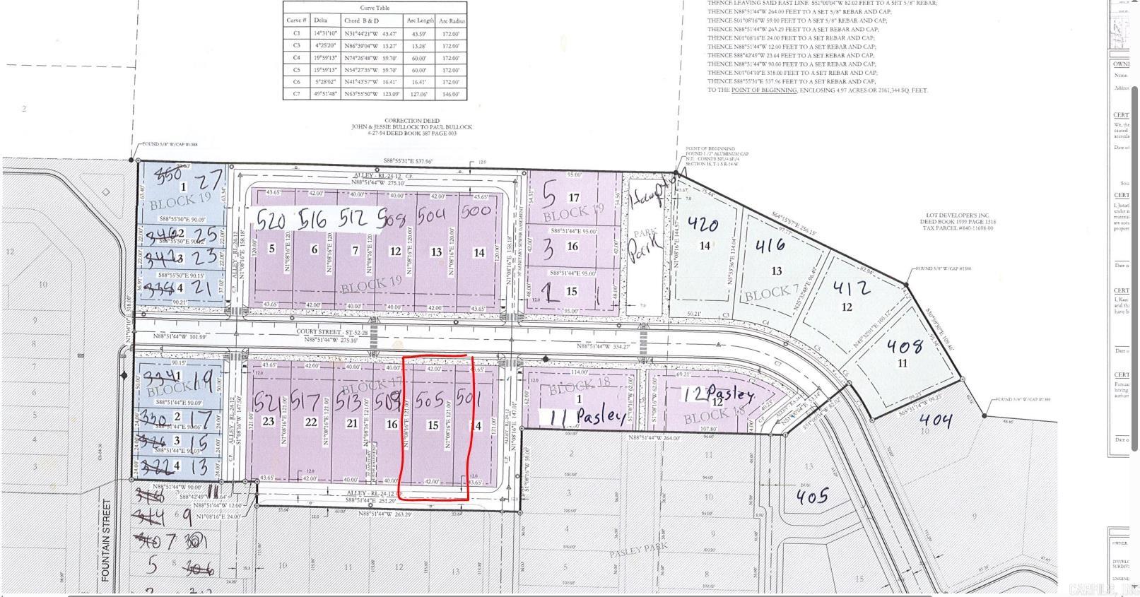
505 Court  Bryant, AR
505 Court  Bryant, AR
505 Court  Bryant, AR

505 Court Street
Bryant, AR

$49,500
- Land
0.12 acres
Active
MLS # 25048387
Listing courtesy of JONATHAN STONE from ARKANSAS LAND & REALTY, INC..
Data last updated Tuesday, December 9th, 2025.
About
Lot for Sale in one of Bryant's most desired neighborhoods! Enjoy a premier location that has a neighborhood pool within walking distance, a weekend farmers market, and is tucked back in a quiet, friendly, and safe community. Zoned for Bryant School districts. All public utilities in place with lot ready to build on. Bill of Assurance and Plat attached in documents.

©2025 Cooperative Arkansas REALTORS® Multiple Listing Services, Inc. All rights reserved. The data relating to real estate for sale on this site comes in part from the Broker ReciprocitySM Program of CARMLS, Inc. Real estate listings, held by brokerage firms other than Halsey Real Estate, are marked with the Broker ReciprocitySM logo and includes the name of the listing brokers. Broker ReciprocitySM information is provided exclusively for consumers' personal, non-commercial use and may not be used for any purpose other than to identify prospective properties for consumers. Use of search facilities of data on this site, for any purpose other than by a consumer inquiring to purchase, is prohibited. Information Deemed Reliable But Not Guaranteed. The broker operating this site believes the data here to be correct but advises interested parties to confirm prior to purchase.

Back to Top
Accessibility