13608 Kanis Road
Little Rock, AR

$3,200
- Commercial Investment
0.5 acres
Active
MLS # 25041461
Listing courtesy of JONATHAN STONE from ARKANSAS LAND & REALTY, INC..
Data last updated Wednesday, October 22nd, 2025.
About
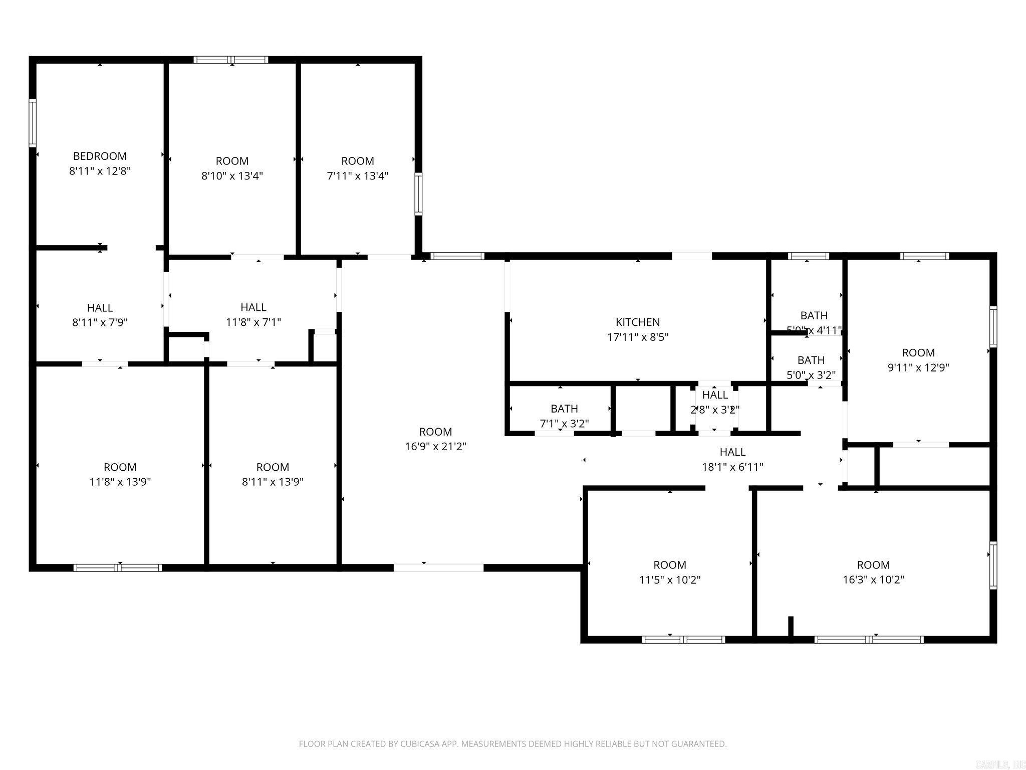
A newly renovated office building now available for lease in West Little Rock, conveniently located off Kanis Road and Chenal Parkway. This space is ideal for businesses, featuring six private offices, a dedicated conference room, a kitchen area, and a printer/supply room. The property sits on 0.5 acres and includes over 10 parking spaces, placing it in the heart of West Little Rock's bustling commercial district. The monthly rent is $3,200, plus $170 in monthly CAM (Common Area Maintenance) fees for exterior upkeep. The office will be available for lease in early November. Please let me know if you are interested in learning more or scheduling a tour.

©2025 Cooperative Arkansas REALTORS® Multiple Listing Services, Inc. All rights reserved. The data relating to real estate for sale on this site comes in part from the Broker ReciprocitySM Program of CARMLS, Inc. Real estate listings, held by brokerage firms other than Halsey Real Estate, are marked with the Broker ReciprocitySM logo and includes the name of the listing brokers. Broker ReciprocitySM information is provided exclusively for consumers' personal, non-commercial use and may not be used for any purpose other than to identify prospective properties for consumers. Use of search facilities of data on this site, for any purpose other than by a consumer inquiring to purchase, is prohibited. Information Deemed Reliable But Not Guaranteed. The broker operating this site believes the data here to be correct but advises interested parties to confirm prior to purchase.

Back to Top
Accessibility