359 US 70
De Valls Bluff, AR

$250,000
- Commercial Investment
0.5 acres
Active
MLS # 25038547
Listing courtesy of CAMME FELL from ARKBEST REALTY, INC..
Data last updated Monday, October 6th, 2025.
About
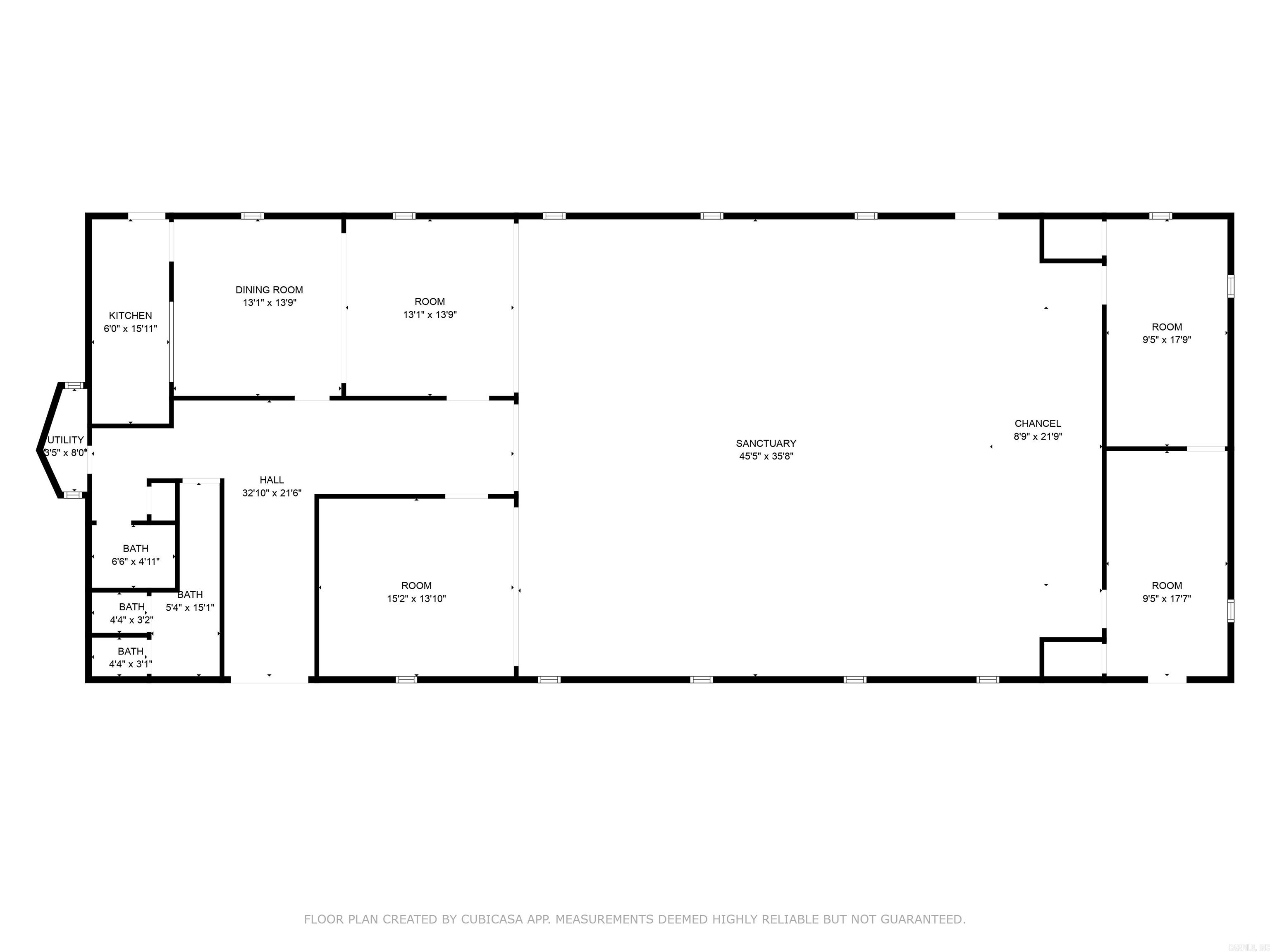
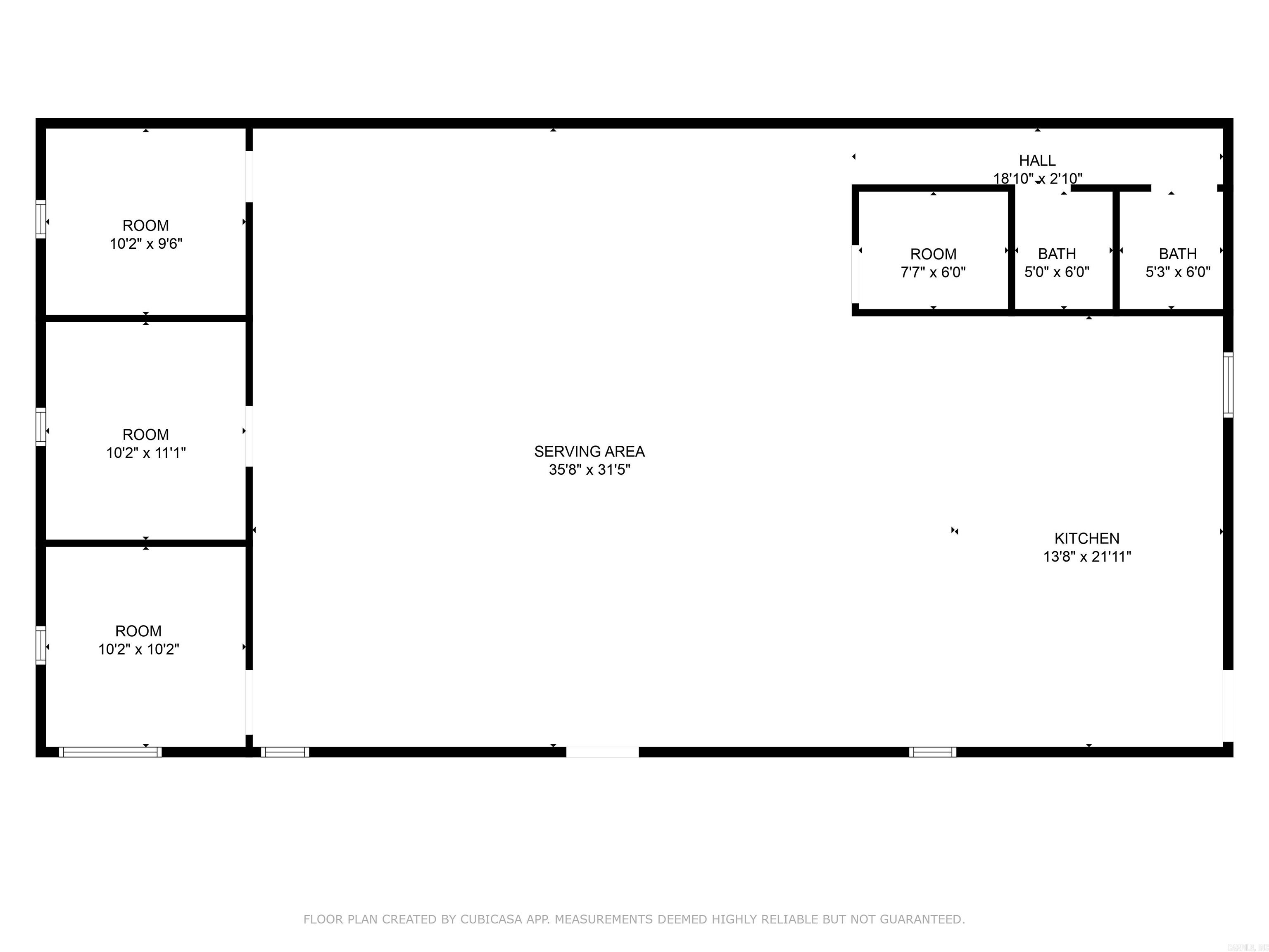
Previous church facility. Any use allowed by seller, check with city planning commission. Over 5k square feet combined space. 3300 SF sanctuary and classroom building and 1980 SF fellowship hall. Appointed offices, classrooms, storage closets, and fellowship hall with full kitchen. 4 restrooms. Asphalt parking. Property being sold as-is present condition. All showings must be accompanied by a Realtor. NO Disclosures provided by seller. Existing personal property will remain but will not be considered part of the sale. Any items left in the building will be considered as-is and abandoned and will have zero value. Seller makes no guarantees, warranties, or representations of any kind regarding the existence, condition, or usability of said personal property which will remain in building at closing. Title transferred by Special Warranty Deed/Trustee Deed.

©2025 Cooperative Arkansas REALTORS® Multiple Listing Services, Inc. All rights reserved. The data relating to real estate for sale on this site comes in part from the Broker ReciprocitySM Program of CARMLS, Inc. Real estate listings, held by brokerage firms other than Halsey Real Estate, are marked with the Broker ReciprocitySM logo and includes the name of the listing brokers. Broker ReciprocitySM information is provided exclusively for consumers' personal, non-commercial use and may not be used for any purpose other than to identify prospective properties for consumers. Use of search facilities of data on this site, for any purpose other than by a consumer inquiring to purchase, is prohibited. Information Deemed Reliable But Not Guaranteed. The broker operating this site believes the data here to be correct but advises interested parties to confirm prior to purchase.

Back to Top
Accessibility