27 Miramichee Circle
Hardy, AR

$199,500
- Residential
1 beds
1 baths
577 sqft
1 acres
Active
MLS # 25034481
Listing courtesy of JASON RHODES from KING-RHODES & ASSOCIATES, INC..
Data last updated Friday, September 12th, 2025.
About
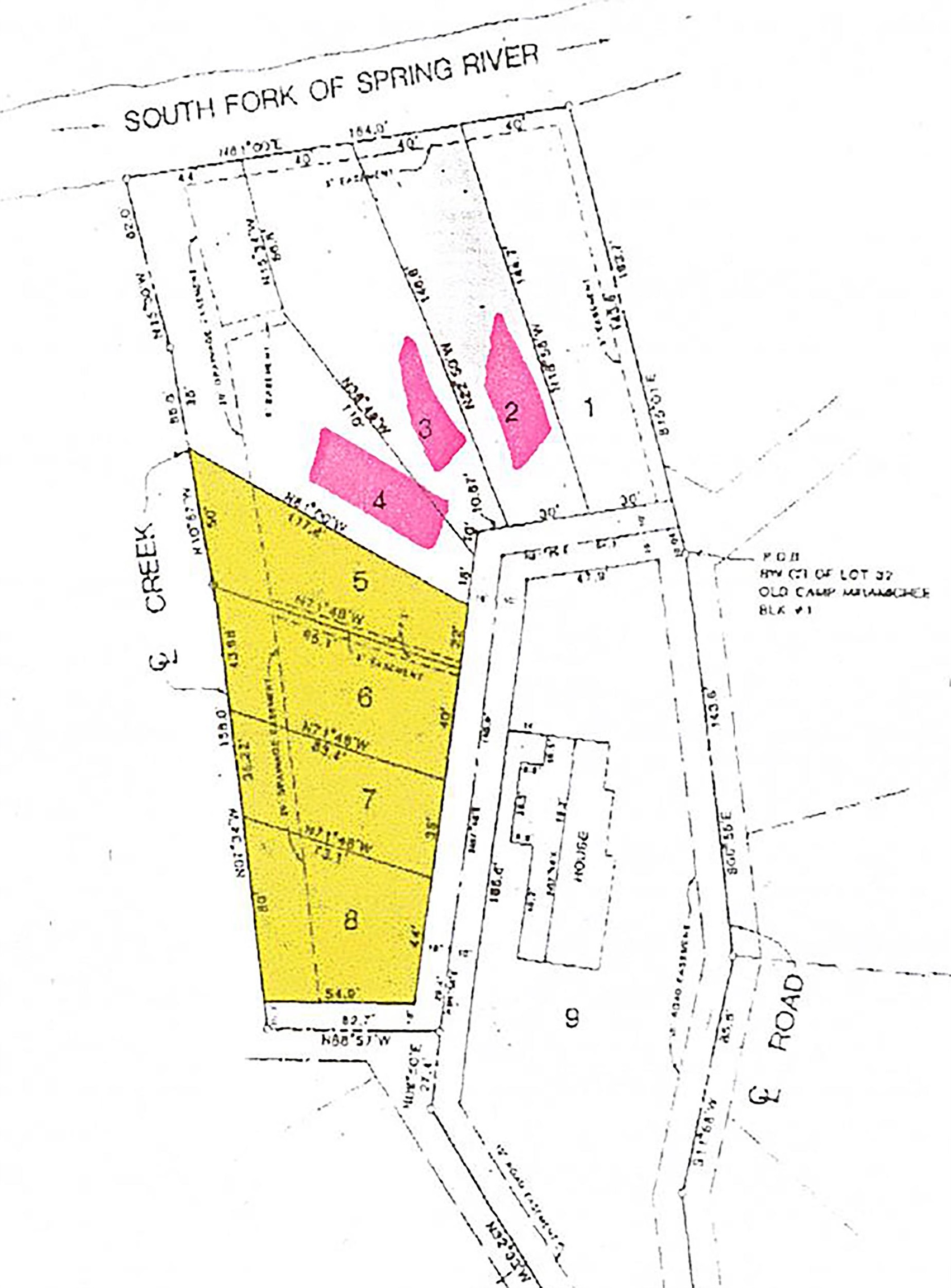
Old Camp Miramichee Cabin and 4 Creek Frontage Lots - This 577 square foot cabin is an original from girls Camp Miramichee days. The cabin has been renovated Inside, and outside with a beautiful new deck. Features include living/dining room with wood burning stove, nice kitchen, bedroom, full bath and original Flagstone flooring. Cabin is being sold furnished and is a good seasonal rental. Across the road are 4 creek frontage lots include with the cabin for an additional 3 m/l acres of land. The cabin and the 4 lots sit next to a creek that flows into the South Fork of the Spring River.

©2025 Cooperative Arkansas REALTORS® Multiple Listing Services, Inc. All rights reserved. The data relating to real estate for sale on this site comes in part from the Broker ReciprocitySM Program of CARMLS, Inc. Real estate listings, held by brokerage firms other than Halsey Real Estate, are marked with the Broker ReciprocitySM logo and includes the name of the listing brokers. Broker ReciprocitySM information is provided exclusively for consumers' personal, non-commercial use and may not be used for any purpose other than to identify prospective properties for consumers. Use of search facilities of data on this site, for any purpose other than by a consumer inquiring to purchase, is prohibited. Information Deemed Reliable But Not Guaranteed. The broker operating this site believes the data here to be correct but advises interested parties to confirm prior to purchase.

Back to Top
Accessibility