17 Cobble Hill Road
Little Rock, AR

$350,000
- Residential
3 beds
2 baths
1680 sqft
0.23 acres
Active
MLS # 25025674
Listing courtesy of JEAN HURST from BERKSHIRE HATHAWAY HOMESERVICES ARKANSAS REALTY.
Data last updated Monday, September 29th, 2025.
About
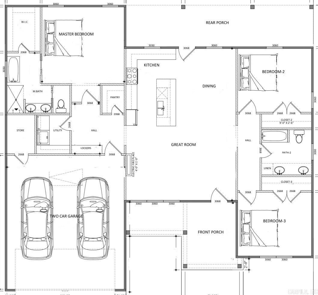
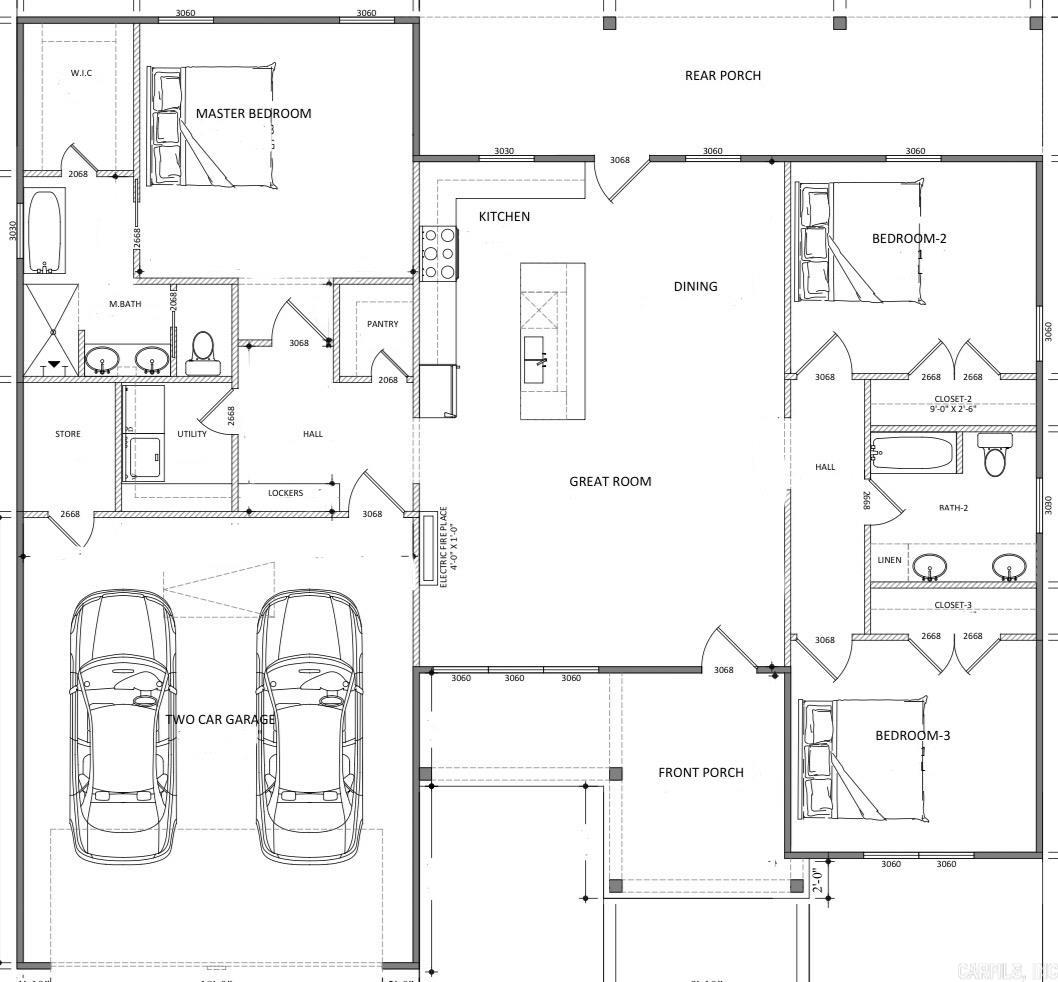
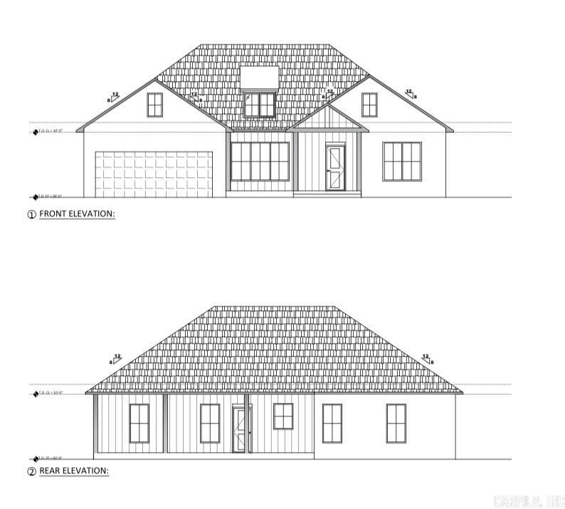
Welcome to your future home—where modern design meets everyday comfort in a space ready to reflect your style. This brand-new construction is taking shape beautifully, with brick now on and sheetrock up, giving you a clear vision of the layout and finish. Enjoy an open floor plan perfect for hosting friends or relaxing at home, a gourmet kitchen with quartz countertops and stainless steel appliances, and a luxurious primary suite featuring double vanities, a soaking tub, separate shower, and spacious walk-in closet. Additional features include a covered back porch for outdoor enjoyment, a two-car garage, and a level yard with sod to be installed. Don’t miss this exciting opportunity to personalize your first home! See agent remarks

©2025 Cooperative Arkansas REALTORS® Multiple Listing Services, Inc. All rights reserved. The data relating to real estate for sale on this site comes in part from the Broker ReciprocitySM Program of CARMLS, Inc. Real estate listings, held by brokerage firms other than Halsey Real Estate, are marked with the Broker ReciprocitySM logo and includes the name of the listing brokers. Broker ReciprocitySM information is provided exclusively for consumers' personal, non-commercial use and may not be used for any purpose other than to identify prospective properties for consumers. Use of search facilities of data on this site, for any purpose other than by a consumer inquiring to purchase, is prohibited. Information Deemed Reliable But Not Guaranteed. The broker operating this site believes the data here to be correct but advises interested parties to confirm prior to purchase.

Back to Top
Accessibility